Vanzare apartament 4 camere Bld. Unirii Fantani, Bucuresti de vanzare — Unirii, Bucuresti

Bucuresti,  Unirii

ID:713

339.500€

Descriere apartament

Vanzare apartament 4 camere Unirii - Bld. Unirii Fantani - Casa Poporului, Bucuresti

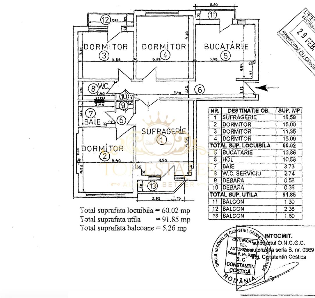
Va propunem un apartament spre vanzare in zona Unirii Casa Poporului pe bld. Unirii pe tronsonul fantanilor situat in unul din blocurile stradale, cu acces stradal . Imobilul are 8 etaje, este edificat in anul 1992. Apartamentul este situat la etajul 3, cu vedere mixta, are 4 camere, 2 grupuri sanitare , 3 balcoane, este decomandat si are o suprafata totala de 98 mp, respectiv 93 mp suprafata utila. Apartamentul are imbunatatiri precum termopane, parchet, gresie, faianta, usi din lemn masiv facuta in jurul anilor 2012. Pretul dorit de proprietar este de 339500 euro, usor negociabil. Liber

Caracteristici apartament

  • Zona: Unirii
  • Suprafata utila: 93 mp
  • Confort: 1
  • Compartimentare: decomandat
  • Etaj: 3/8
  • Numar Bai: 2
  • Numar Balcoane: 3
  • Numar Camere: 4
  • An Constructie: 1992

Caracteristici generale apartament

  •  Acces:Mixt

     Acces internet:Fibra optica Wireless

     Aer Conditionat:Da

     Bucatarie:Inchisa Da

     Calorifere:Da

     Destinatie:Locuinta/Birou

     Dotari:Aer Conditionat WC Serviciu Hi-Fi Interfon

     Electrocasnice:Fara

     Ferestre:PVC

     Incalzire:Termoficare

     Interfon:Da

     Lift:Da

     Mobilat:Nemobilat

     Pereti:Faianta Lavabil

     Podele:Parchet Gresie

     Servicii:Administrare

     Stadiu Finisare:Finalizat

     Strazi:Asfaltate

     Tip Bloc:Bloc

     Tip Structura Bloc:Cadre

     Usa intrare:Metal

     Utilitati:Curent Apa Canalizare Gaz CATV Internet

     Vecinatati Spatii:Banca Supermarket Fastfood Trafic Pietonal Intersectie circulata Benzinarie Hotel Ultracentral Parc Mall Restaurant/pub Piata Scoala/gradinita Metrou Autobuz Zona comerciala Terenuri Centru universitar

     Vedere:Mixta

Harta

Ai nevoie de ajutor? Ne puteti contacta pe