Vanzare apartament 3 camere Biruintei Popesti Leordeni, Ilfov de vanzare — Leordeni, Popesti-Leordeni

Popesti-Leordeni,  Leordeni

ID:701

133.900€

Descriere apartament

Vanzare apartament 3 camere Biruintei - Popesti Leordeni, Ilfov

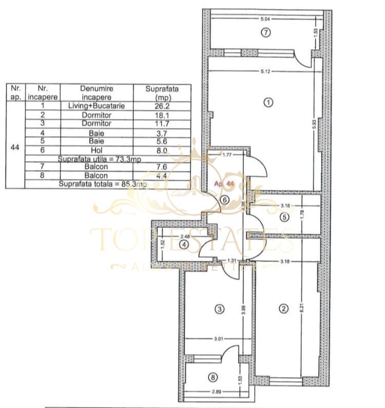
Descoperă un apartament de 3 camere luminos și primitor, situat pe Str. Biruinței nr. 45, în Popești-Leordeni, într-un bloc modern, construit în 2021, la etajul 3 din 6.

Cu o suprafață utilă de 73 mp și 85 mp total, inclusiv două balcoane, locuința este decomandată, oferind intimitate și confort pentru întreaga familie. Compartimentarea practică, cu vedere mixta, cele două băi generoase și spațiile aerisite creează un echilibru ideal între funcțional și relaxare. Bucataria este deschisa cu zona de living, dar daca se doreste aceasta se poate inchide cu usurinta. Proprietatea se vinde semimobilata.

Dotări și avantaje:

- centrală termică proprie

- 2 balcoane ideale pentru momente de respiro

- 2 grupuri sanitare

- finisaje moderne

- loc de parcare suprateran în proprietate, în curtea imobilului

Localizare excelentă:

- stația de metrou Dimitrie Leonida la aproximativ 10-12 minute de mers pe jos

- școli și grădinițe în apropiere

- acces rapid către București, Șos. Berceni și zonele de interes

- magazine, transport public și servicii la câțiva pași

Un apartament care îți oferă liniște, confort și acces rapid către oraș, ideal pentru cei care își doresc un cămin modern sau o investiție sigură.

Actele sunt pregatite pentru vanzare, Pretul este usor negociabil. Ramane decat sa programam o vizionare. 

Caracteristici apartament

  • Zona: Leordeni
  • Suprafata utila: 73 mp
  • Confort: 1 sporit
  • Compartimentare: decomandat
  • Etaj: 3/6
  • Numar Bai: 2
  • Numar Balcoane: 2
  • Numar Camere: 3
  • An Constructie: 2021

Caracteristici generale apartament

  •  Acces:Fata

     Acces internet:Fibra optica Wireless

     Aer Conditionat:Da

     Balcoane:Termopan

     Bucatarie:Da Mobilata Utilata

     Calorifere:Da

     Destinatie:Locuinta

     Dotari:Hi-Fi WC Serviciu Dressing TV Interfon Senzor incendii Masina rufe Frigider Aragaz Aer Conditionat

     Electrocasnice:Masina de spalat rufe Hi-Fi Cuptor microunde Hota TV Aragaz Frigider

     Ferestre:PVC

     Incalzire:Centrala proprie

     Interfon:Da

     Izolatii termice:Exterior

     Lift:Da

     Mobilat:Partial Modern Stare Buna

     Pereti:Faianta Lavabil

     Podele:Gresie Parchet

     Servicii:Paza Administrare

     Stadiu Finisare:Finalizat

     Strazi:Asfaltate

     Tip Bloc:Bloc

     Tip Structura Bloc:Cadre

     Usa intrare:Metal

     Utilitati:Curent Apa Canalizare Gaz CATV Internet

     Vecinatati Spatii:Autobuz Zona comerciala Supermarket Trafic Pietonal Restaurant/pub Scoala/gradinita Metrou Terenuri Banca

     Vedere:Mixta

Harta

Ai nevoie de ajutor? Ne puteti contacta pe